28 of 56 Properties | Back to Results
1002 11th Street, Lakeport - $299,500
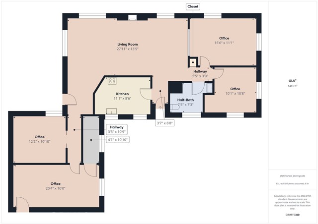
1452 Est. Sq. Ft. | Lot Acres: 0.33 | MLS # LC25182673
Live/Work in this move in ready property. Currently an office building with a full kitchen, bathroom, reception area, waiting room, 4 offices and a storage shed. All in excellent condition. The building is located on high traffic 11th St. A well-placed sign could give 1000’s of views a day. Don’t miss this opportunity to own this live/work property. The property can also be converted back to a residence with proper permitting. There are a lot of possibilities with this property. Office, Live/Work, or Residence. You pick.
Map Print FlyerProperty Features | |||
|---|---|---|---|
| View: | Water: | n/a | |
| Roof: | Composition | Sewer: | |
| Heat: | Fireplace(s), Forced Air | Cooler: | Central Air |
| Year Built: | 1978 | ||
| Contact: | James Magliulo - Country Air Properties | ||
CARETS IDX Disclaimer:
The information being provided by CARETS (CLAW, CRISNet MLS, DAMLS, CRMLS, i-Tech MLS, and/or VCRDS) is for the visitor's personal, non-commercial use and may not be used for any purpose other than to identify prospective properties visitor may be interested in purchasing.
Any information relating to a property referenced on this web site comes from the Internet Data Exchange (IDX) program of CARETS. This web site may reference real estate listing(s) held by a brokerage firm other than the broker and/or agent who owns this web site.
The accuracy of all information, regardless of source, including but not limited to square footages and lot sizes, is deemed reliable but not guaranteed and should be personally verified through personal inspection by and/or with the appropriate professionals. The data contained herein is copyrighted by CARETS, CLAW, CRISNet MLS, DAMLS, CRMLS, i-Tech MLS and/or VCRDS and is protected by all applicable copyright laws. Any dissemination of this information is in violation of copyright laws and is strictly prohibited.
CARETS, California Real Estate Technology Services, is a consolidated MLS property listing data feed comprised of CLAW (Combined LA/Westside MLS), CRISNet MLS (Southland Regional AOR), DAMLS (Desert Area MLS),CRMLS (California Regional MLS), i-Tech MLS (Glendale AOR/Pasadena Foothills AOR) and VCRDS (Ventura County Regional Data Share).



